\(\leftarrow\) Back to 2420 N Geneva Home
Floorplan
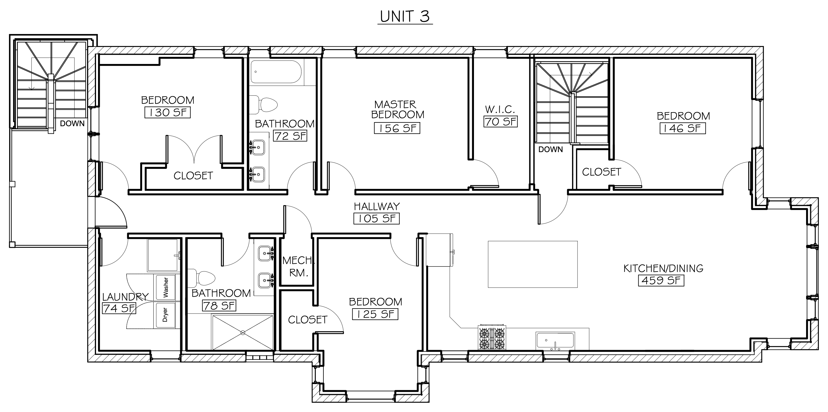
The thoughtfully designed layout features four generously sized bedrooms, two full bathrooms, a bright and open living area, a well-appointed kitchen, and a dedicated laundry and storage room for added convenience. Unit 3 features a built-in closet, whereas Unit 2 does not, due to structural differences within the building.
Bedrooms

North / master bedroom

East bedroom

South bedroom / office

West bedroom
North / Master Bedroom: The largest bedroom in the residence, featuring a 67 sq ft walk-in closet with a pre-installed wardrobe system and space for a small home office.
East Bedroom: The first room to welcome the morning sun, filled with natural light. Due to structural layout, Unit 2’s east bedroom does not include a closet.
South Bedroom / Office: The brightest room in the home, ideal as either a bedroom or home office.
West Bedroom: The quietest room in the residence, featuring two windows with west and north exposures and exceptional privacy.
Bathrooms

South bathroom

North bathroom
South Bathroom: The south bathroom features a spacious walk-in shower with a modern, contemporary design. An extra-large knee wall and a window for natural light help create a bright and open atmosphere, while the handheld showerhead adds flexibility and convenience.
North Bathroom: The north bathroom includes a double vanity, a bathtub, and a window that provides natural light. It offers a comfortable space to relax, supported by endless hot water from the home’s high-efficiency tankless water heating system.
Laundry & storage

Laundry & storage room
Laundry & Storage Room: The laundry and storage room offers a truly elevated experience, featuring a sunlit space with full southern exposure and a full-size window. The room includes side-by-side washer and dryer units, a convenient countertop for folding, and an additional utility sink for added functionality. Ample storage space is also available. A high-efficiency tankless water heater ensures endless hot water, capable of comfortably supporting two showers, the washer, and the dishwasher simultaneously.
Kitchen

Kitchen
Kitchen: The kitchen combines modern design with everyday functionality, featuring a spacious layout centered around a large quartz island that provides ample workspace and seating. Custom cabinetry with elegant brass hardware, a farmhouse-style sink positioned beneath a bright window, and high-end stainless steel appliances create a clean and refined aesthetic. The sink is equipped with a touchless faucet, adding convenience and hygienic control for everyday use. Thoughtfully placed contemporary pendant lighting and abundant natural light further enhance the open atmosphere, making the kitchen an inviting space for both daily living and entertaining.
Appliances & technology
The home is equipped with carefully selected, high-end appliances designed to ensure both performance and reliability. The building also features an integrated security and connectivity system, including keyless entry, commercial-grade surveillance, and enterprise-level internet infrastructure, providing residents with both convenience and peace of mind.
Materials
The unit has been constructed with a strong emphasis on environmental quality and resident well-being. All paints, cabinetry, and closets utilize premium low/zero-VOC materials to promote a healthier indoor environment. Additionally, the entire water supply line—from the city water main to the interior fixtures—has been fully replaced, effectively eliminating any potential concerns related to lead contamination.
