\(\leftarrow\) Back to 2417 N Geneva Home
Floorplan
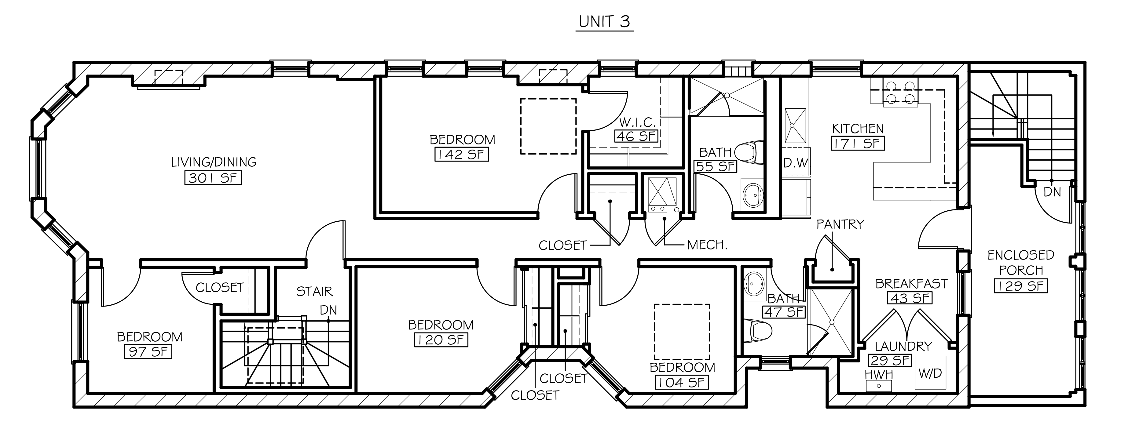
Unit 3 offers four bedrooms and two bathrooms with an open living and dining area along the west side of the home. The kitchen connects to a breakfast space, laundry room, and enclosed porch, providing a comfortable and efficient layout.
