\(\leftarrow\) Back to 2417 N Geneva Home
Floorplan
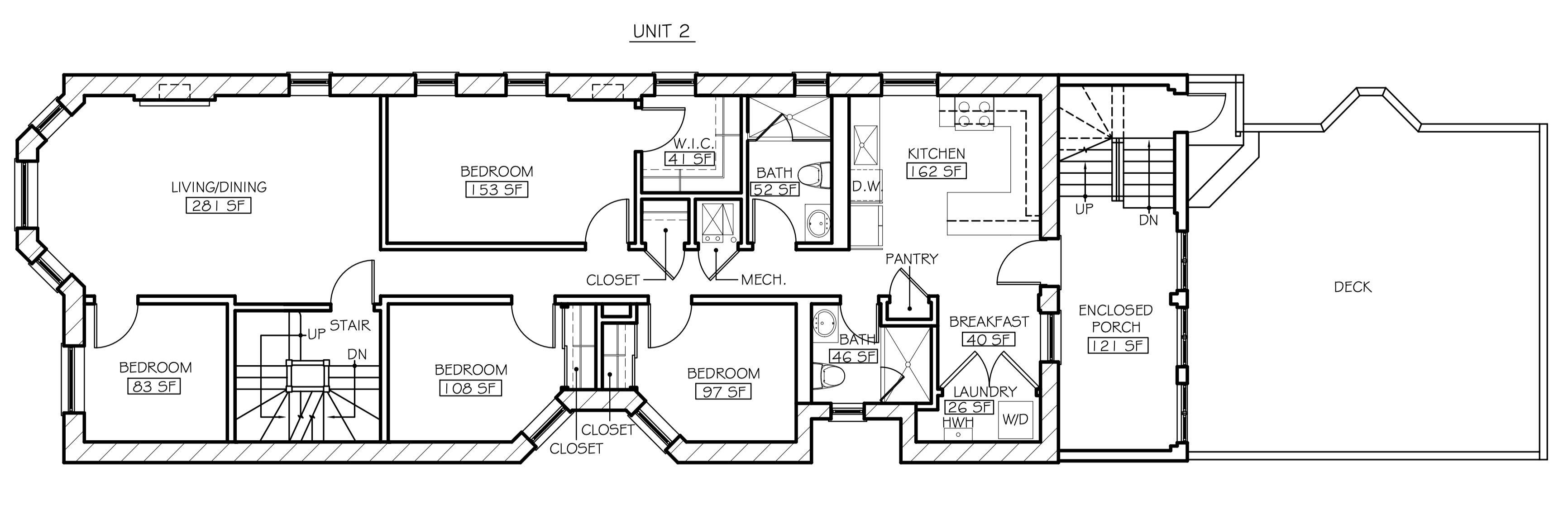
Unit 2 provides four bedrooms and two bathrooms arranged around a central hallway. The home includes a large living and dining area, a kitchen with adjacent breakfast space, in-unit laundry, and an enclosed porch that leads directly to the private deck.
