\(\leftarrow\) Back to 2417 N Geneva Home
Floorplan
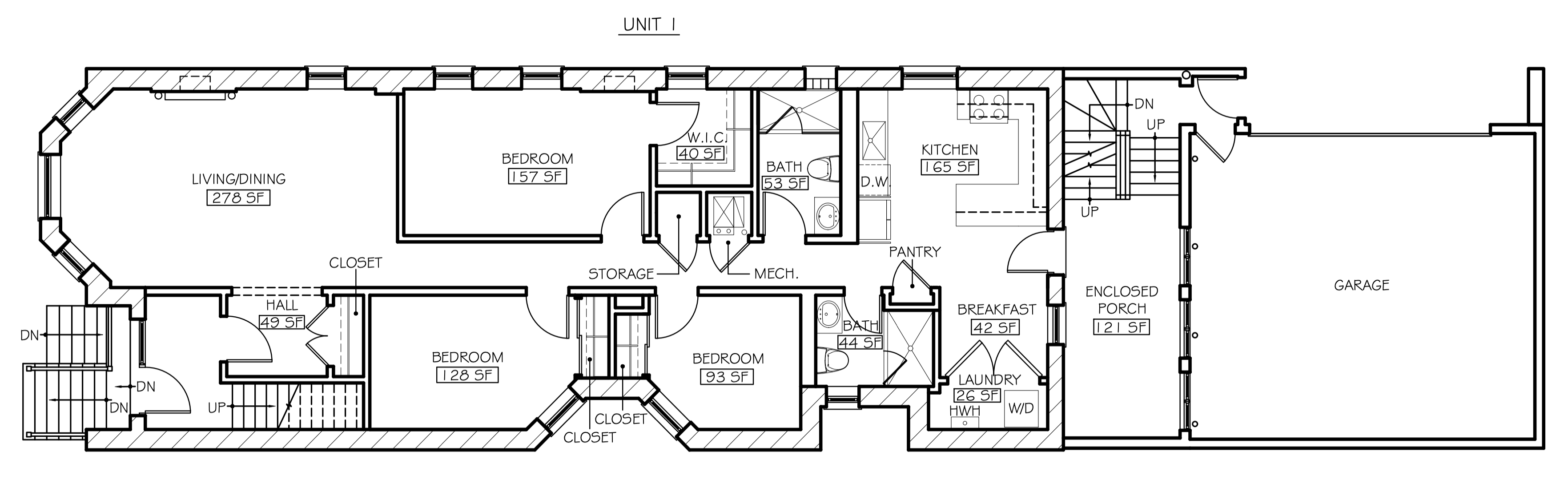
Unit 1 features three bedrooms and two bathrooms with a spacious living and dining area at the front of the home. The kitchen sits near the center of the layout and connects to a breakfast area, laundry room, and enclosed porch.
