\(\leftarrow\) Back to Development & Renovation
Overview
Located within the Arlington–Deming Historic District in Lincoln Park, 2420 N Geneva Terrace underwent a full renovation from the end of 2023 to the end of 2024. The project focused on preserving the building’s historic character while replacing aging infrastructure and reconfiguring the interiors for modern residential living. This page documents the redevelopment process, from initial conditions and demolition through construction and final completion.
Project Story
Originally built in 1881, 2420 N Geneva Terrace required a comprehensive redevelopment to support modern residential use. The project involved selective demolition, replacement of aging structural and mechanical systems, and the full renovation of the interior living spaces. Over the course of roughly one year, the building was transformed from an aging structure into updated residences while retaining its historic identity within the Lincoln Park streetscape. The animation below highlights the transition from the original condition to the rebuilt structure, using the first floor as an example.

Three months of transformation
◆ Existing Conditions Before Renovation
Before construction began, the property showed the wear of age and deferred upgrades. The following images document the original layouts and conditions prior to demolition and renovation.

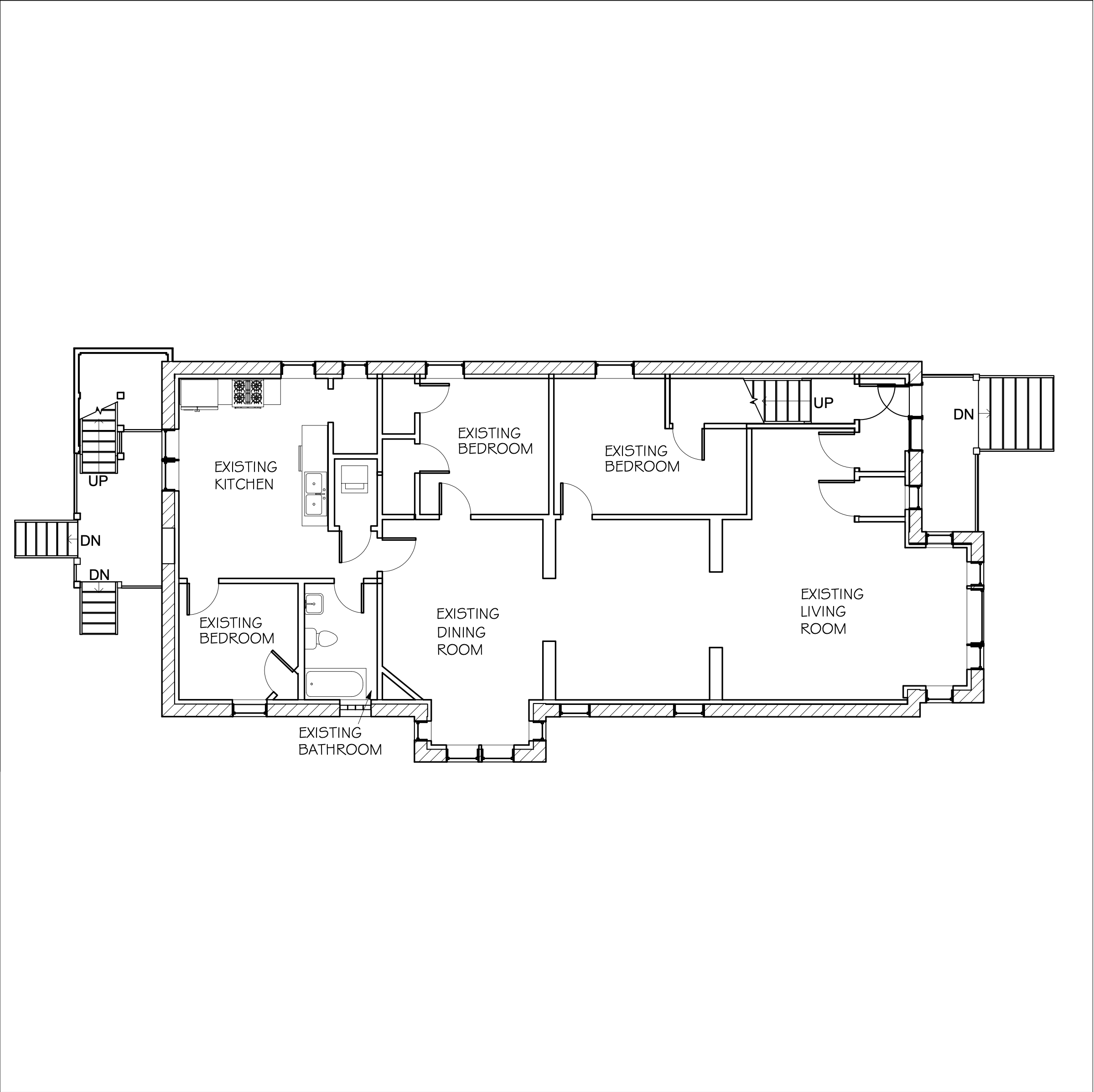
Original layout

Original kitchen

Original living space

Original bedroom
◆ Construction Process
The redevelopment included extensive demolition and the replacement of outdated infrastructure, including major building systems and interior assemblies.

Temporary structural jacking

Beam replacement and colomn installation

Construction of the new kitchen

Construction of the new living room
◆ Completed Residence
Following nearly a year of redevelopment, the historic building now offers updated residences with modern infrastructure, functional layouts, and renewed interior spaces.

Kitchen (new)

North bedroom (new)

West bedroom (new)

South bathroom (new)
Scope of Work
- Extensive interior demolition
- Structural upgrades, including installation of steel beams and posts and new concrete footings in the basement
- Major infrastructure upgrades throughout the building
- Replacement of outdated mechanical, plumbing, and electrical systems
- Replacement of the main water supply line from the city connection to the building branch to eliminate potential lead piping
- Interior reconfiguration for modern residential layouts
- Finish installation and final construction completion
Want to explore the residences at 2420 N Geneva Terrace?